MIM -A


Vivienda unifamiliar aislada en Sa Riera, Girona
Mariona Benedito con Maria Pella

 

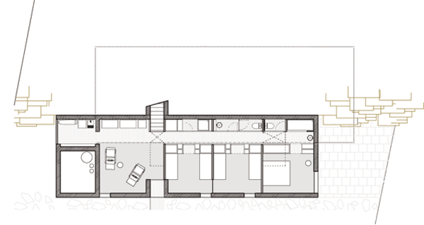
sariera_04_planta_-1_bona

+info